меню
Отельное здание

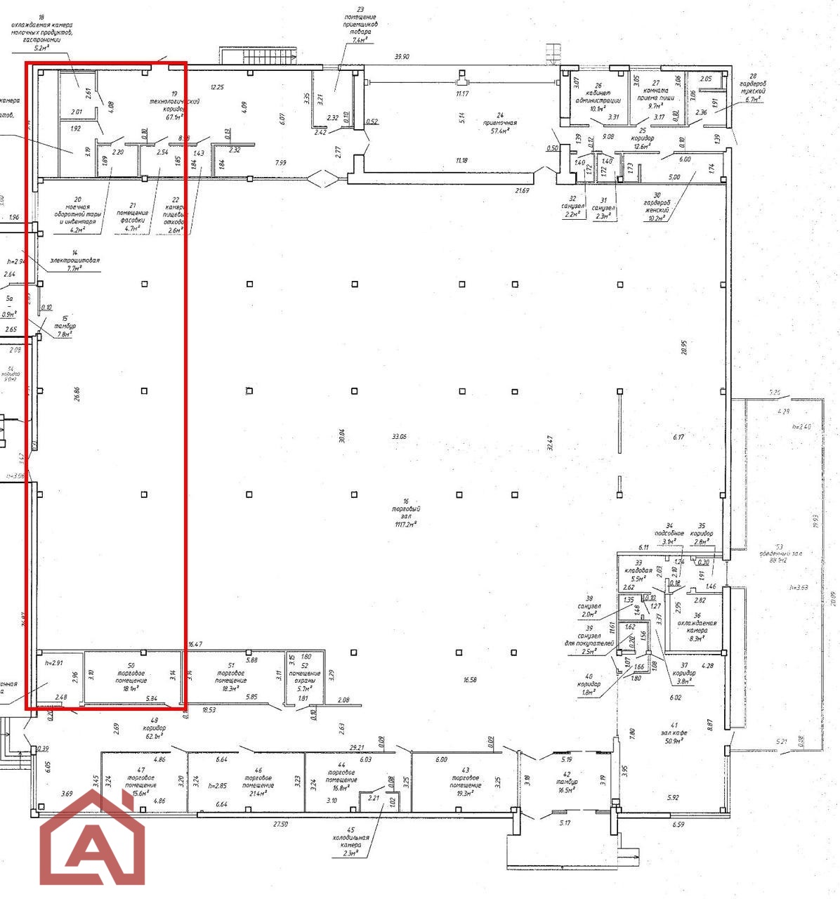
Аренда торгового помещения 280-580 м2 по адресу ул. Ложинская 23

Отельное здание
580 м² г.п.
12 172.32 BYN 3 852 $/6.64 $ кв.м.
Сотрудник Роман Попеня

Параметры объекта

  • Город: Минск
  • Район: Уручье
  • Тип аренды: Прямая аренда
  • Тип здания: Отельное здание
  • Стоимость, $: 3852
  • Площадь, м²: 580
  • Количество раздельных помещений : 1
  • Ремонт: Обычный
  • Удобства: видеонаблюдение , отопление
  • Этаж: 1
  • Этажность : 1
  • Отдельный вход: Есть
  • Паркинг: Есть
  • Интернет: Есть
Аренда торгового помещения 280-580 м2 по адресу ул. Ложинская 23

Первый этаж, отдельный вход. Отличная локация — оживлённый перекрёсток с высоким пешеходным и транспортным трафиком, рядом — многочисленные арендаторы и развитая инфраструктура.

Преимущества:
• Первый этаж, отдельный вход; также есть вход со стороны магазина.
• Расположение на оживлённом перекрёстке — высокая проходимость.
• Рядом много соседних арендаторов — дополнительный поток клиентов.
• Остановка общественного транспорта в шаговой доступности; удобные подъездные пути.
• Парковка; наличие рампы и возможность маневрирования крупногабаритного транспорта.
• В помещении подключены электричество, вода, отопление и высокоскоростной интернет.

Арендатор не оплачивает услуги агентства.

Консультация эксперта по выбору недвижимости для жизни или инвестирования.

Забронируем нужный вариант на время продажи и продадим вашу недвижимость по лучшей рыночной стоимости.

Получите экспертную оценку своей недвижимости, просто позвонив нам.

Не дозвонились? Напишите нам в Viber, WhatsApp, Telegram.

Площадь указана по СНБ.

Абсолют Недвижимость УНП 193547698.

Лицензия 02240/416 выд. Минюст. РБ, 16.06.2021г.

Закажите консультацию эксперта:

  • - по выбору недвижимости для жизни или инвестирования.

  • - забронировать нужный вариант на время продажи 

  • - продажа вашей недвижимости по лучшей рыночной стоимости

  • - получить экспертную оценку своей недвижимости



    Или напишите в удобный
    для вас мессенджер


Смотреть другие объекты

Аренда офиса от 15.9 м² до 106,3 м² в БЦ «Анкор», пр-т Партизанский, 178
Шабаны
Аренда офиса от 15.9 м² до 106,3 м² в БЦ «Анкор», пр-т Партизанский, 178
Б. центр 2007 г.п. 106.3 м²

22.12 BYN

7 $/0.07 $ кв.м.

Подробнее
Аренда торгового помещения ст. м. Каменная Горка, ул. Притыцкого 97
Запад, Красный Бор
Аренда торгового помещения ст. м. Каменная Горка, ул. Притыцкого 97
Т. центр г.п. 25 м²

2 117.20 BYN

670 $/26.80 $ кв.м.

Подробнее
Аренда помещения от 18 до 93 м2 в д. Боровляны по ул. 40 лет Победы, 34
Аренда помещения от 18 до 93 м2 в д. Боровляны по ул. 40 лет Победы, 34
Т. центр г.п. 93 м²

1 769.60 BYN

560 $/6.02 $ кв.м.

Подробнее
Аренда помещения с ремонтом 66.7 м2 в Минск-Мире по ул. Щемелева 14
Минск-Мир
Аренда помещения с ремонтом 66.7 м2 в Минск-Мире по ул. Щемелева 14
Прочее г.п. 66.7 м²

3 792 BYN

1200 $/17.99 $ кв.м.

Подробнее
Аренда помещения под магазин, склад, производство аг. Щомыслица, ул. Брестская
Аренда помещения под магазин, склад, производство аг. Щомыслица, ул. Брестская
Прочее г.п. 101.80 м²

3 027.28 BYN

958 $/9.41 $ кв.м.

Подробнее
Аренда элитного офиса - Пр-т Победителей 7А
Аренда элитного офиса - Пр-т Победителей 7А
Б. центр г.п. 115.3 м²

6 557 BYN

2075 $/18.00 $ кв.м.

Подробнее
Аренда здания свободного назначения по ул. Долгобродская, 9
Тракторный завод
Аренда здания свободного назначения по ул. Долгобродская, 9
Жилой дом 1958 г.п. 54,6 м²

1 580 BYN

500 $/9.26 $ кв.м.

Подробнее
Аренда торговой площади ул. Долгобродская, 8
Аренда торговой площади ул. Долгобродская, 8
г.п. 79,7 м²

4 424 BYN

1400 $/17.72 $ кв.м.

Подробнее
Аренда торгового помещения в г. Минск, ул. Филимонова, 4
Багратиона, Менделеева, Уральская, Столетова
Аренда торгового помещения в г. Минск, ул. Филимонова, 4
Отельное здание г.п. 300 м²

6 320 BYN

2000 $/6.67 $ кв.м.

Подробнее

Заявка на продажу квартиры

Оставьте свои котактные данные и мы свяжемся с вами

Заявка принята!

Мы свяжемся с вами и обсудим все детали подробнее