меню

Продается Производственно-складской комплекс 1261 м² в 11 км от Минска, д. Юхновка, ул. Луговая

1261.6м² 2001 г.п.
1 880 200 BYN 595 000 $/471.62 $ кв.м.
Сотрудник Роман Попеня

Параметры объекта

  • Город: Минск
  • Вид объекта: Офис
  • Площадь, м²: 1261.6
  • Количество раздельных помещений: 10-15
  • Ремонт: Хороший
  • Удобства: отопление
  • Этаж: 1
  • Этажность : 1
  • Паркинг: Есть
  • Интернет: Есть
  • Стоимость, $: 595000
Продается готовый объект для вашего бизнеса — производственная база с отличной логистикой и автономными коммуникациями.

Основные характеристики:

• Два отдельно стоящих здания: 932.7 м² и 328.9 м².
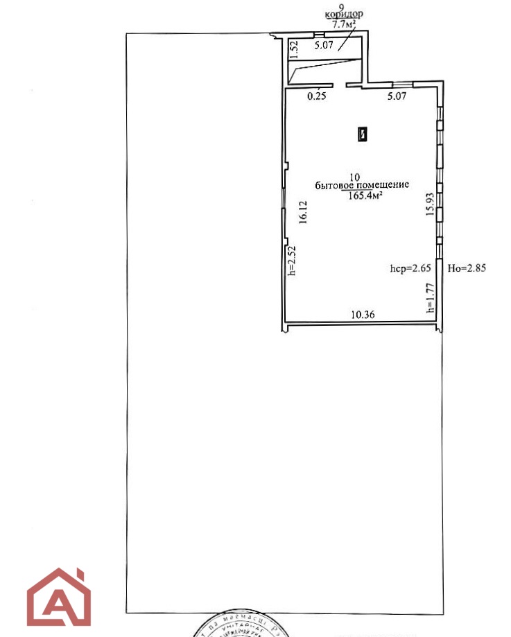
• Офисный блок: 165 м²
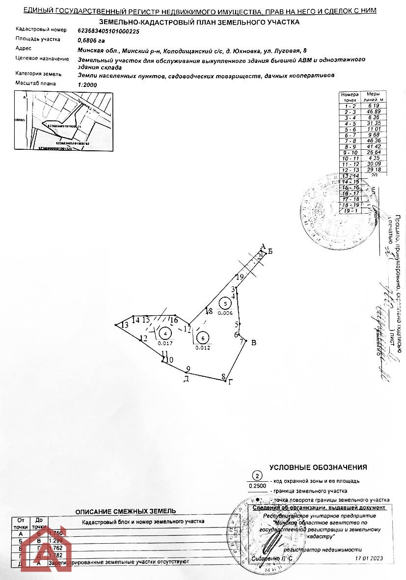
• Земельный участок: 68 соток (территория полностью огорожена).

Инженерные решения и логистика:
• Отопление: Собственная газовая котельная.
• Водоснабжение: Промышленная скважина со всеми разрешительными документами.
• Высота потолков: До 5 метров
• Транспорт: 2 независимых въезда на территорию, отличные подъездные пути для большегрузного транспорта. Расстояние до МКАД — всего 11 км.

Преимущества:
Объект обладает высоким потенциалом для расширения: на территории есть место для строительства еще одного корпуса.

Консультация эксперта по выбору недвижимости для жизни или инвестирования.

Забронируем нужный вариант на время продажи и продадим вашу недвижимость по лучшей рыночной стоимости.
Получите экспертную оценку своей недвижимости, просто позвонив нам.
Не дозвонились? Напишите нам в Viber, WhatsApp, Telegram.

Площадь указана по СНБ.

Абсолют Недвижимость УНП 193547698.
Лицензия 02240/416 выд. Минюст. РБ, 16.06.2021г.

Закажите консультацию эксперта:

  • - по выбору недвижимости для жизни или инвестирования.

  • - забронировать нужный вариант на время продажи 

  • - продажа вашей недвижимости по лучшей рыночной стоимости

  • - получить экспертную оценку своей недвижимости



    Или напишите в удобный
    для вас мессенджер


Смотреть другие объекты

Элитный офис в центре города с захватывающим видом на реку — Пр-т Победителей 7А
Победителей, Заславская, Грибоедова, Тимирязева
Элитный офис в центре города с захватывающим видом на реку — Пр-т Победителей 7А
Бизнес-центр г.п. 115,3м²

821 600 BYN

260 000 $/2 260.87 $ кв.м.

Подробнее

Заявка на продажу квартиры

Оставьте свои котактные данные и мы свяжемся с вами

Заявка принята!

Мы свяжемся с вами и обсудим все детали подробнее