меню
дом

Продажа 2-этажного дома д. Прилуки

дом
44.99 соток 157м² 90 км от МКАД
78 684 BYN 24 900 $/158.60 $ кв.м.
Сотрудник Дмитрий Бабицкий

Параметры объекта

  • Направление: Брестское
  • Расстояние от МКАД, км: 90
  • Тип объекта: дом
  • Площадь участка, сотки: 44.99
  • Стоимость, $: 24900
  • Собственность: Частная собственность
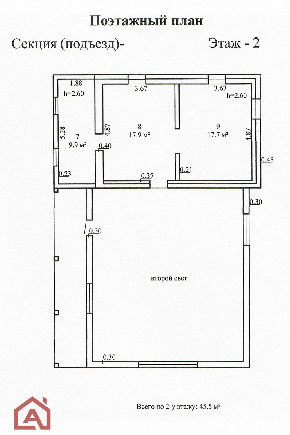
  • Площадь дома, м²: 157
  • Материал стен: Блоки газосиликатные
  • Год постройки: 2023
  • Количество этажей: 2
  • Количество комнат: 7
  • Ремонт: Под чистовую отделку
  • Тип продажи: Чистая
  • Холодное водоснабжение: Нет
  • Горячее водоснабжение: Нет
  • Газоснабжение: Нет
  • Телефон: Нет
  • Сауна/баня: Нет
  • Электроснабжение: Да
  • Бассейн: Нет
  • Интернет: Нет
  • Гараж: Да
Продаётся дом в тихой деревне хуторского типа с одной улицей.
Всего 4 км от г.п. Мир (Мирский замок). Кругом лес, тишина, пение птиц и отсутствие оживлённых дорог.

Соседи – современная коттеджная застройка с ухоженными участками.
На участке есть колодец, гараж, погреб и хозпостройки.
Электричество 220/380. Выделено 17 кВт.

Дом расположен на участке 25 соток в частной собственности. Через дорогу расположен участок 19,99 соток под ЛПХ.
При необходимости можно увеличить площадь за счёт приобретения соседнего дома с участком.

Приезжайте, смотрите, покупайте.

Параметры объекта

  • Год постройки:
  • Этажность:

Правовая информация

  • Возраст собственников:
  • Постоянно зарегистрированные:
  • Правоустанавливающие документы:
  • Количество собственников:
  • Год вступления в собственность:


Состояние квартиры

  • Канализация и водоснабжение:
  • Электрика:
  • Газоснабжение:
  • Планировка:
  • Перепланировка:
  • Ремонт:

Закажите консультацию эксперта:

  • - по выбору недвижимости для жизни или инвестирования.

  • - забронировать нужный вариант на время продажи 

  • - продажа вашей недвижимости по лучшей рыночной стоимости

  • - получить экспертную оценку своей недвижимости



    Или напишите в удобный
    для вас мессенджер


Смотреть другие объекты

Продажа 2-этажной дачи с цокольным этажом (гараж с погребом). СТ "Белая Берёзка"
дача
Продажа 2-этажной дачи с цокольным этажом (гараж с погребом). СТ "Белая Берёзка"
7.65 сот м² 16 км от МКАД

BYN

$/ $ кв.м.

Подробнее
Продажа земельного участка д. Мочаны, ул.Заречная, 33Б
прочее
Продажа земельного участка д. Мочаны, ул.Заречная, 33Б
11.94 сот м² 12 км от МКАД

BYN

$/ $ кв.м.

Подробнее
Продажа земельного участка д. Мочаны, ул.Заречная, 33А
прочее
Продажа земельного участка д. Мочаны, ул.Заречная, 33А
10.28 сот м² 12 км от МКАД

BYN

$/ $ кв.м.

Подробнее
Продажа участка с домом в современной перспективной деревне Мочаны, ул. Заречная
прочее
Продажа участка с домом в современной перспективной деревне Мочаны, ул. Заречная
25 сот 90.9м² 12 км от МКАД

300 200 BYN

95 000 $/1 045.10 $ кв.м.

Подробнее
Продается просторный дом в современной перспективной деревне Шпаковщина, пер. Луговой
дом
Продается просторный дом в современной перспективной деревне Шпаковщина, пер. Луговой
25 сот 197.7м² км от МКАД

395 000 BYN

125 000 $/632.27 $ кв.м.

Подробнее
Продажа участка СТ «Контакт», 43 км от МКАД
Продажа участка СТ «Контакт», 43 км от МКАД
10.52 сот м² 43 км от МКАД

395 000 BYN

125 000 $/632.27 $ кв.м.

Подробнее
Продается 2-этажный современный дом - 217 м2 в аг. Ратомка (7 км от МКАД)
дом
Продается 2-этажный современный дом - 217 м2 в аг. Ратомка (7 км от МКАД)
16 сот 217.9м² 17 км от МКАД

2 177 240 BYN

689 000 $/3 162.00 $ кв.м.

Подробнее
Продажа дома с гаражом д. Томковичи, ул.Зелёная , Дзержинский р-н
дом
Продажа дома с гаражом д. Томковичи, ул.Зелёная , Дзержинский р-н
20,31 сот 82.0м² 26 км от МКАД

142 200 BYN

45 000 $/548.78 $ кв.м.

Подробнее
Продажа участка 10 соток Логойский р-н., д. Карпиловка
Продажа участка 10 соток Логойский р-н., д. Карпиловка
10.5 сот м² км от МКАД

142 200 BYN

45 000 $/548.78 $ кв.м.

Подробнее

Заявка на продажу квартиры

Оставьте свои котактные данные и мы свяжемся с вами

Заявка принята!

Мы свяжемся с вами и обсудим все детали подробнее